手术室送风天花 – 广州梓净净化设备有限公司 http://www.52xiaomantou.cn Fri, 06 Mar 2026 01:30:51 +0000 zh-CN hourly 1 https://wordpress.org/?v=5.0.22 http://www.52xiaomantou.cn/wp-content/uploads/2017/10/cropped-11100-1-32x32.jpg 手术室送风天花 – 广州梓净净化设备有限公司 http://www.52xiaomantou.cn 32 32 万级层流送风天花|万级手术室送风天花 http://www.52xiaomantou.cn/4289.html http://www.52xiaomantou.cn/4289.html#respond Sun, 07 Apr 2024 03:25:46 +0000 http://www.52xiaomantou.cn/?p=4289 万级层流送风天花、万级手术室送风天花、洁净净化送风天花;万级层流送风天花是现代医院手术室必用的一种净化装置。万级层流送风天花它的装置是根据国内外好的阻漏层技术,依托手术室洁净送风天花装置,使用本设备可合理分布洁净室内的气流,有效保室内的洁净度(送风面100级)。

层流送风天花设计图

万级送风天花又称为洁净送风天花,净化送风天花,层流送风天花,无尘送风天花,手术室送风天花。
万级送风天花箱体板金制作,表面烤漆。万级送风天花随着现代医学科学技术的发展,外科技术对手术室的洁净条件的要求也越来越高。百级层流手术室是目前为理想的。

什么是万级层流送风天花?
万级层流送风天花是一种基于空气洁净技术的微生物污染控制设备,它依托手术室洁净送风天花装置,通过合理的气流分布,确保室内的洁净度达到送风面100级的标准。它可广泛应用于医院洁净手术室、洁净病房、洁净动物房等项目,为医疗环境提供极致净化解决方案。

手术室层流送风天花制作现场实拍图

万级层流送风天花的工作原理
万级层流送风天花的工作原理是根据空气洁净技术,通过高压喷射的空气将微生物污染程度不同的空气进行控制,从而达到控制空间环境中空气洁净度的目的。同时,它还能提供适宜的温、湿度,创造一个洁净舒适的手术空间环境。

万级层流送风天花板的优势
高效净化:万级层流送风天花能够有效控制空气中的微生物污染,确保手术室内的洁净度达到最高标准,为患者提供安全的手术环境。

合理气流分布:万级层流送风天花能够合理分布气流,使洁净空气覆盖整个手术室,确保手术过程中洁净度的稳定。

智能控制:万级层流送风天花采用智能控制系统,可实时监测室内洁净度、温、湿度等参数,并根据需求进行调节,确保室内环境始终处于最佳状态。

节能环保:万级层流送风天花采用节能设计,降低能耗,同时减少对环境的影响。

安装方便:万级层流送风天花板的设计便于安装和维护,节省了医院的人力物力资源。

但如何有效管理,使层流手术室的空气菌落数符合卫生部颁发的空气环境卫生学标准,又符合洁净手术室等级标准,并使之减少到最低限度,国内检索文献资料较少,是目前洁净手术室管理中值得探讨的一个新的课题。

层流送风天花是采用空气洁净技术对微生物污染采取程度不同的控制,达到控制空间环境中空气洁净度适于各类手术之要求;并提供适宜的温、湿度,创造一个洁净舒适的手术空间环境。

手术室层流送风天花制作现场实拍图

那么、层流送风天花有什么特别要求呢?
层流天花是洁净手术室、层流病房的净化送风末端,它兼有高效过滤,均流及气流补偿作用。
层流天花结构的合理性直接影响到手术室的送风效果,净化级别、垂直送风模式;
像”梓净”牌层流送风天花结构合理,分为I、II、III级手术室用,箱体冷板喷塑,下框全不锈钢,美观耐用。洁净送风天花装置是根据国内外领先的阻漏层技术,使用本设备可合理分布洁净室内的气流,有效保证室内的洁净度(送风面100级)。

层流净化手术室不仅要求高度洁净的空气(进入手术室的空气须经高效过滤器净化),而且要求能控制气流的流通方向(即采用层流超净装置),使气流从洁净度高的手术区域流向洁净度低的区域,并带走和排出气流中的尘??帕?尘粒)和细菌;层流是一股细小、薄层的气流,以均匀的流速向同一方向输送;净化气流的方向分为垂直层流式和水平层流式两种。

“梓净”牌洁净层流送风天花高效过滤器有组合式高效过滤器、无隔板高效过滤器有隔板高效过滤器三种,可根据需要选配。

手术室洁净层流送风天花安装效果

手术室层流送风天花的高效过滤器如何维护呢?
手术室层流送风天花的高效过滤器维护要点:
1、检验方法:观察或白绸布擦拭检查。

2、对于高效过滤器,安装方向必须正确:过滤器在竖向与框架之间的连接,严禁渗漏、变形、破损和漏胶等,安装后必须保证内壁清洁,无浮尘、油污、锈蚀及杂物等。

3、高效过滤器在安装前,不允许用手撕毁或打开包装袋或包装膜;应严格按照高效过滤器包装箱上标注的方向标准存放空气过滤器;在高效空气过滤器的搬运过程中,应轻拿、轻放,避免剧烈的振动和碰撞。必须对洁净室进行全面清扫、擦净,净化空调系统内部如有积尘,应再次清扫、擦净,达到清洁要求。如在技术夹层或吊顶内安装高效过滤器,则技术层或吊顶内也应进行全面清扫、擦净。必须在安装现场拆开包装进行外观检查,内容包括:滤纸、密封胶和框架有无损坏;边长、对角线和厚度尺寸是否符合要求;框架有无毛刺和锈斑(金属框);有无产品合格证,技术性能是否符合设计要求。

4、高效过滤器的运输和存放应按照生产厂标志的方向搁置。在运输过程中,应轻拿轻放,防止剧烈振动和碰撞,不可以强制装卸。

5、安装高效过滤器时,外框上箭头应和气流方向一致;当其垂直安装时,滤纸折痕方向应垂直于地面。安装粗效平板式或折叠式过滤器,应使镀锌网面在出风背面方向。安装袋式过滤器,则应使滤袋长度方向垂直于地面,不可使滤袋方向平行于地面安装。

6、在设备运行时,一般不要更换过滤器;如因过滤器已到更换期限而无法?;?则只允许在不停风机情况更换初效过滤器、中效过滤器;亚高效过滤器和高效过滤器必须停止送风后方可更换。

7、高效过滤器与连接框架之间的密封垫,必须严密、无泄露,以保证过滤效果。

推荐阅读:百级层流送风天花? 千级层流送风天花? 手术室送风天花阻尼网

]]>
http://www.52xiaomantou.cn/4289.html/feed 0
洁净层流送风天花|百级|千级|万级 http://www.52xiaomantou.cn/4280.html http://www.52xiaomantou.cn/4280.html#respond Sun, 07 Apr 2024 01:44:11 +0000 http://www.52xiaomantou.cn/?p=4280 洁净层流送风天花等级分别为百级层流送风天花、千级层流送风天花、万级层流送风天花等等。
洁净层流送风天花,顾名思义,就是将洁净的空气送达到天花板,通过天花板上的送风系统将空气均匀地分布到室内各个角落。这种设计方式不仅美观大方,而且能有效地提高室内空气质量,为人们创造一个健康舒适的生活环境。

洁净层流送风天花设计图

洁净层流送风天花使用本设备可合理分布洁净室内的气流,有效保证室内的洁净度。洁净层流送风天花可广泛应用于医院洁净手术室、洁净病房、洁净动物房等项目。洁净送风天花是一种在医院手术室的洁净空间送风吊顶设置的过滤、阻漏、均匀分布气流的洁净送风天花装置。

洁净层流送风天花等级分别为百级层流送风天花、千级层流送风天花、万级层流送风天花等等。

洁净层流送风天花具有以下几个显著特点:
高效净化:洁净层流送风天花采用HEPA高效过滤器等,能有效过滤空气中的细菌、病毒、尘埃等有害物质,确保室内空气质量达到更好状态。
均匀送风:通过天花板上的送风系统,洁净空气能均匀地分布到室内各个角落,避免出现局部死角,保证室内空气流动性和舒适性。
智能控制:洁净送风天花板通常配备有智能控制系统,可根据室内人数、温度、湿度等因素自动调节运行,实现节能环保。
美观大方:洁净送风天花板的设计与天花板装饰相结合,外观时尚、简约,能很好地融入室内环境中,提升室内美感。
安静舒适:洁净送风天花板采用低噪音设计,运行过程中几乎听不到噪音,为人们营造一个安静舒适的生活空间。

手术室洁净层流送风天花安装效果

百级送风天花:I级层流送风天花产品尺寸W2950*D2500*H500,高效过滤器尺寸610*305*292配(8个)I级8个高效过滤器
千级送风天花:Ⅱ级层流送风天花产品尺寸W2600*D1800*H500,高效过滤器尺寸610*305*292配(6个)Ⅱ级6个高效过滤器
万级送风天花:Ⅲ级层送风天花产品尺寸W2600*D1400*H500mm,高效过滤器尺寸610*305*292配(4个)Ⅲ级4个高效过滤器;
血液病房送风天花尺寸2950*2500*500高效过滤器尺寸610*305*292配(8-10个)

眼科病房送风天花尺寸1500*1500*500高效过滤器尺寸610*305*292(4个)

“梓净”牌洁净层流送风天花高效过滤器有组合式高效过滤器、无隔板高效过滤器、有隔板高效过滤器三种,可根据需要选配。

手术室洁净层流送风天花安装效果

洁净层流送风天花要求:
1、一种手术室的洁净送风天花,包括箱体、高效过滤器,其特征是,在进风上方按气流方向设置高效过滤器箱体,箱体内置高效过滤器,在箱体进风口处设有均布器,在箱体下方设置阻漏层。
2、要求手术室的送风天花,其特征是,阻漏层为柔性低阻亚高效过滤材料阻漏层,阻漏层的阻力为40—80Pa;阻漏层的过滤效率在亚高效范围内。

3、要求手术室的洁净送风天花,其特征是,高效过滤器箱体内设有混风器。

4、要求手术室的洁净送风天花,其特征是,阻漏层下方设有装饰层。

5、要求手术室的洁净送风天花,其特征是,在静压箱侧壁开设有联通孔。
洁净送风天花一种手术室的洁净送风天花,其特征是,在进风上方按气流方向设置高效过滤器箱体及高效过滤器,在静压箱进风口处设均布器,下方设阻漏层。阻漏层为低阻亚高效过滤材料,阻力在40—80Pa,过滤效率在亚高效范围内。

手术室洁净层流送风天花生产车间

 

洁净层流送风天花优点:
设置阻漏层,突破了高效过滤器必须布置在送风末端的常规模式;可降低建筑层高;方便过滤器的安装检修;使室内含尘浓度再次降低,把洁净区面积扩大1倍以上。适用于手术室和包括单向流百级区乱流洁净间。

总之,洁净层流送风天花作为一种新型的空气调节设备,以其高效净化、均匀送风、智能控制、美观大方和安静舒适等特点,成为了现代室内环境建设的首选。

推荐阅读: Ⅲ级手术室送风天花 手术室送风天花阻尼网

]]>
http://www.52xiaomantou.cn/4280.html/feed 0
千级层流送风天花|1000级高效送风天花 http://www.52xiaomantou.cn/4139.html http://www.52xiaomantou.cn/4139.html#respond Tue, 08 Aug 2023 03:03:28 +0000 http://www.52xiaomantou.cn/?p=4139 千级层流送风天花又叫1000级高效送风天花,层流送风天花配高效过滤器有三种选择,组合式高效过滤器,亚高效过滤器和液槽式高效过滤器三款等。

I级送风天花配8个高效过滤器,Ⅱ级送风天花6个高效过滤器,Ⅲ级送风天花4个高效过滤器等。

层流送风天花设计图

层流送风天花分别为百级、千级、万级层流送风天花、层流送风天花是现代医院手术室必用的一种净化装置。层流送风天花它的装置是根据国内外好的阻漏层技术,依托手术室洁净送风天花装置,使用本设备可合理分布洁净室内的气流,有效保证室内的洁净度(送风面100级)。

千级层流送风天花可广泛应用于医院洁净手术室、洁净病房、洁净动物房等项目。层流送风天花装置是根据国内外好的阻漏层,使用本设备可合理分布洁净室内的气流,有效保证室内的洁净度(送风面100级),箱体板金制作,表面烤漆。

层流送风天花

千级层流送风天花是采用空气洁净技术对微生物污染采取程度不同的控制,达到控制空间环境中空气洁净度适于各类手术之要求;并提供适宜的温、湿度,创造一个洁净舒适的手术空间环境

送风天花主要应用在手术室中,净化层流手术室可分为100000级、10000级、1000级、100级四级。

送风天花分为三个级别:
百级送风天花:Ⅰ型
千级送风天花:Ⅱ型
万级送风天花:Ⅲ型

手术室层流送风天花安装实拍图

送风天花过滤器更换标准:
送风天花高效过滤器:阻力已超过额定初阻力100Pa,或等于2×设计或运行初阻力(低阻亚高效时为3倍)1年以上,超过标准随时更换。

“梓净”牌层流送风天花高效过滤器有组合式高效过滤器、无隔板高效过滤器、有隔板高效过滤器三种,可根据需要选配。

送风天花的设计特点:
百级送风天花即满布高效过滤器的送风顶棚,有多种形式,本设计采用液槽密封形式的送风天花。
目前,液槽密封结构有两种形式。
其一,高效过滤器上装,即带液槽的高效过滤器从上部装入与之配套的框架刀口上,依靠高效过滤器边框液槽内的密封胶与框架刀口来实施对气流的密封。

这种结构需要的静压箱高度较大,否则,高效过滤器调转不开。虽然高效过滤器在刀口框架上方,但并非在吊顶夹层内安装,而是在洁净室内把高效过滤器穿过框架口伸入静压箱后再转向放于框架的刀口上。所以,夹层空间小的话,高效过滤器转不开。

其二,高效过滤器下装,即高效过滤器带液槽的边在下方,带刀口的框架位于液槽的上方,与第一种情况正好相反,框架的刀口向下,把高效过滤器伸入静压箱内,液槽边在刀口正下方,用压件托住高效过滤器,使其边框液槽与刀口接触来密封空气,高效过滤器的重量由4个压件承担。

高效过滤器

带刀口的框架常用的材质有专用铝合金型材、不锈钢型材。铝型材运输、安装比较方便,可工厂化制作现场组装。

但在连接缝处需靠密封胶密封,组装后铆钉外露,不太美观。不锈钢型材采用氩弧焊焊接,比铝型材的插件铆接密封性好。
但如果在施工现场焊接,质量不好保证。如果送风天花面积小的话可工厂化制作,现场安装,这样质量可得到保证。如果送风天花面积大的话,工厂化制作后的成品运输又有困难。

在本设计中综合上述优缺点,釆 用不镑钢型材工厂化泡作。由千级送风夭花的面积较大,考虑到运输的因耒,把送风夭花分割 成三部分(即用25mm厚的彩考峡芯板将静箱分害威三等分)。

每一部分安装一整片刀口框架,把每一片分割成15个高效过滤器单元。 这样做比采用一个大的静压箱均效果,但整个送风面的盲区有所增大,不过,经验算满 布比能满足垂直单向流的荽求。尽如此,在本设计中釆用了高效过滤器下吾媒设阻尼孔板 来消除送风面盲区的影响,以保正百级单向流气流组织。

百级送风天花采用技术层流净化天花,层流天花是洁净手术室、层流病房的净化送风末端,它兼有高效过滤,均流及气流补偿作用。

推荐阅读: Ⅲ级手术室送风天花 手术室送风天花阻尼网

]]>
http://www.52xiaomantou.cn/4139.html/feed 0
阻漏式送风天花|手术室阻漏式层流送风天花 http://www.52xiaomantou.cn/4060.html http://www.52xiaomantou.cn/4060.html#respond Wed, 19 Apr 2023 09:11:04 +0000 http://www.52xiaomantou.cn/?p=4060 阻漏式送风天花(阻漏式层流送风天花)阻漏式百级洁净送风天花,手术室阻漏送风天花,手术室送风天花,阻漏式层流送风天花是将空气以一定地风速通过高效过滤器后,形成均流层,使洁净空气呈垂直单向流,从而保证了工作区内达到工艺要求的洁净度。

冷板喷塑层流送风天花
阻漏式层流送风天花可单独使用,亦可大面积并联使用。阻漏式层流送风天花是一种可提供局部洁净环境的空气净化单元,可灵活地安装在需要高洁净度的工艺点上方,洁净层流罩可以单个使用,也可多个组合成带状洁净区域。

冷板喷塑层流送风天花

层流送风天花优势:
采用不锈钢(电解钢板)层流送风天花参照国内规范和技术进行开发,结构先进合理,具有以下特点:
A、产品规格:I级2600*2400,II级2600*1800,III2600*1400;

B、送风形式:层流送风天花分高效过滤器满布送风和高效过滤器侧布送风两种;

C、气流状态:送风天花下部气流均匀,气流满布率≧95%,达到检测的相关参数要求;

D、均流模式:多块网孔板组合,出风均韵,静电粉末喷涂,和墙顶面同色,表面效果好;

E、工厂制造,现场采用标准连接件拼接组装,安装方便、简单,设备安装质量有保障;

F、维护操作:国标规格过滤器,更换快捷、方便,易维护。

冷板喷塑层流送风天花

手术室层流送风天花可选配件:
1、A型箱体为冷轧钢板静电喷塑处理,冷轧钢板静电喷塑做围护及进风过滤框,含双层DPP均流网及中速气流补偿装置。

2、B型外箱体采用冷板喷塑,内部SUS30不锈钢制作,中间夹保温板。抗腐蚀、耐酸碱、保温效果好,视觉更美观;强度高,同时,保留双层DPP均流网及中速气流补偿装置。

层流送风天花静压箱采用电解镀锌钢板表面喷漆处理或不锈钢加工,四边采用硅胶密封,形成一个气密箱体;送风天花采用“梓净”牌HEPA高效过滤器过滤99.999%@0.3μm,安装在静压箱内,且能从天花下面进行维修;送风天花表面采用优质纱网框,它是一种特殊系数的阻尼网层,使空气垂直地送到手术室主流区。

层流送风天花

医院手术室层流送风天花的送风系统形式分析:
医院洁净空调的任务应该是,维持室内所需要的空气洁净气候状态并解决空气过滤器的应用中的尘埃、微生物、气味和有害气体,而医院手术室的净化空调工程是更重要也是最困难的任务,尤其是空调过滤器,手术室层流天花,手术室高效空气过滤器的更换,风淋室控制空气途径造成的术后感染至关重要,同时因为降低和避免术后感染是保证手术成功、缩短患者恢复时间、降低医疗费用的关键所在。

手术室洁净送风形式探讨空气过滤器,另外手术室空调的另一特点是服务面积虽小但风量大、能耗高、使用时间不确定,因此手术室空调过滤器在创造高度洁净的室内气候同时应特别注意空调洁净系统的节能环保。

手术室阻漏送风天花安装实拍图

手术室阻漏送风天花技术参数说明:
送风天花过滤器尺寸,送风天花过滤器数量;送风天花选配DPP均流膜、不锈钢孔板均流、气流补偿装置、净化灯带;I级,II级,III级
I级层流送风天花产品尺寸2950*2500*500,高效过滤器尺寸610*305*292配(8个)

Ⅱ级层流送风天花产品尺寸2600*1800*500,高效过滤器尺寸610*305*292配(6个)

Ⅲ级层送风天花产品尺寸2600*1400*500,高效过滤器尺寸610*305*292配(4个)

血液病房送风天花尺寸2950*2500*500高效过滤器尺寸610*305*292配(8-10个)

眼科病房送风天花尺寸1500*1500*500高效过滤器尺寸610*305*292(4个)

推荐阅读: Ⅲ级手术室送风天花 手术室送风天花阻尼网 

]]>
http://www.52xiaomantou.cn/4060.html/feed 0
百级层流送风天花 http://www.52xiaomantou.cn/4054.html http://www.52xiaomantou.cn/4054.html#respond Wed, 19 Apr 2023 08:17:40 +0000 http://www.52xiaomantou.cn/?p=4054 百级层流送风天花(百级洁净送风天花)手术室送风天花高效过滤器,百级送风天花又称为百级洁净送风天花或者百级层流送风天花,手术室送风天花。百级送风天花采用全新国外技术层流净化天花,层流天花是洁净手术室、层流病房的净化送风末端,它兼有高效过滤器过滤,均流及气流补偿作用。

百级层流送风天花

百级送风天花特点:
我司生产的百级送风天花采用全新国外技术层流净化天花,层流天花是洁净手术室、层流病房的净化送风末端,它兼有高效过滤,均流及气流补偿作用。层流天花结构的合理性直接影响到手术室的送风效果,净化级别.垂直送风模式,手术室专用不锈钢层流送风天花:层流送风天花参照国际国内规范和技术进行开发,经十多年实际医院使用经验积累,结构先进合理,不锈钢精制,分为I、II、III级手术室用,箱体冷板喷塑,下框全不锈钢,美观耐用。

百级层流送风天花

百级送风天花特点:
我司生产的百级送风天花采用全新国外技术层流净化天花,层流天花是洁净手术室、层流病房的净化送风末端,它兼有高效过滤,均流及气流补偿作用。层流天花结构的合理性直接影响到手术室的送风效果,净化级别.垂直送风模式,手术室专用不锈钢层流送风天花:层流送风天花参照国际国内规范和技术进行开发,经十多年实际医院使用经验积累,结构先进合理,不锈钢精制,分为I、II、III级手术室用,箱体冷板喷塑,下框全不锈钢,美观耐用。

使用本送风天花可合理分布洁净室内的气流,有效保证室内的洁净度(送风面100级)??晒惴河τ糜谝皆航嗑皇质跏摇⒔嗑徊》?、洁净动物房等项目。
使用本送风天花可合理分布洁净室内的气流,有效保证室内的洁净度(送风面100级)??晒惴河τ糜谝皆航嗑皇质跏?、洁净病房、洁净动物房等项目。

百级层流送风天花

百级送风天花技术参数:
百级层流送风天花是采用空气洁净技术对微生物污染采取程度不同的控制,达到控制空间环境中空气洁净度适于各类手术之要求;并提供适宜的温、湿度,创造一个洁净舒适的手术空间环境。送风天花对送人室内的空气进行严格的过滤,除去空气中的浮游细菌,加上科学的气流组织,使病员、医护人员产生的细菌随气流带走,不会返回手术切口,以避免来自空气感染。因此空气严格过滤,气流的合理组织,是手术室空气净化系统的技术核心。
百级层流送风天花是采用空气洁净技术对微生物污染采取程度不同的控制,达到控制空间环境中空气洁净度适于各类手术之要求;并提供适宜的温、湿度,创造一个洁净舒适的手术空间环境。送风天花对送人室内的空气进行严格的过滤,除去空气中的浮游细菌,加上科学的气流组织,使病员、医护人员产生的细菌随气流带走,不会返回手术切口,以避免来自空气感染。因此空气严格过滤,气流的合理组织,是手术室空气净化系统的技术核心。

推荐阅读:手术室送风天花 Ⅲ级手术室送风天花 手术室送风天花阻尼网 

]]>
http://www.52xiaomantou.cn/4054.html/feed 0
Ⅲ级手术室送风天花 http://www.52xiaomantou.cn/2802.html http://www.52xiaomantou.cn/2802.html#respond Thu, 26 Sep 2019 14:04:18 +0000 http://www.52xiaomantou.cn/?p=2802 Ⅲ级手术室送风天花|万级层流送风天花介绍:

Ⅲ级手术室送风天花又称为万级手术室送风天花、Ⅲ级送风天花、Ⅲ级层流送风天花,现代医院手术室必用的一种净化装置,它的装置是根据国内外领先的阻漏层技术,依托手术室洁净送风天花装置,使用本设备可合理分布洁净室内的气流,有效保证室内的洁净度(送风面10000级(万级))。

Ⅲ级手术室送风天花工作原理:

Ⅲ级手术室送风天花送风回风方式

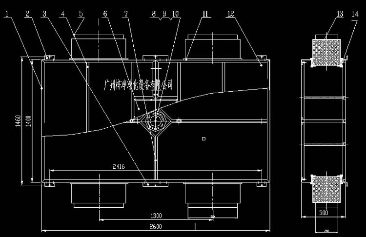
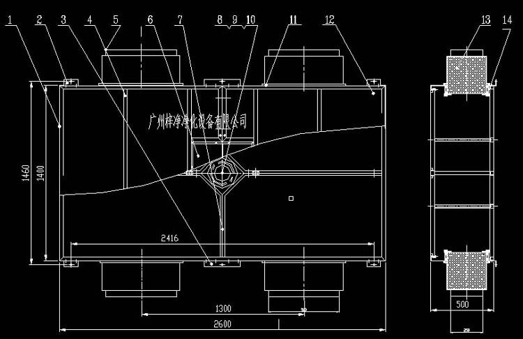
Ⅲ级手术室送风天花|万级层流送风天花方案设计图:

Ⅲ级手术室送风天花方案设计图CAD制作

Ⅲ级手术室送风天花规格尺寸:W2600*D1400*H500mm,由于用户要求不同,500的高度可根据用户需要制作,高效过滤器可选用侧铺或平铺两种。

Ⅲ级手术室送风天花图片

Ⅲ手术室送风天花制作要求选配:

1、万级层流送风天花箱体为冷轧钢板静电烤漆处理。

2、万级层流送风天花箱体采用全SUS304不锈钢制作。

3、万级层流送风天花阻尼层均流可选用铝质网孔板、304不锈钢网孔板、冷轧钢板烤漆网孔板、双层DPP均流网(DPP均流网又叫纱网,如上图)。

4、高效过滤器有组合式高效过滤器、无隔板高效过滤器、有隔板高效过滤器三种,可根据需要选配,“梓净”牌Ⅲ级手术室送风天花W2600*D1400*H500mm一般标配4个侧铺高效过滤器(规格610*305*292mm)。

医院手术室送风天花

手术室层流送风天花-洁净送风天花是洁净手术室,层流病房的净化送风末端,它兼有高效过滤,均流及气流补偿作用。层流净化送风天花结构的合理性直接影响到手术室的送风效果,净化级别。层流送风天花是近十年来手术室送风末端经验及实践的结晶,该型式末端已得到了近千间手术室的运用证实,其优越的性能,独特的双层DPP均流网能使气流均匀送到工作区域,而中央气流补偿装置,能有效地消除人员、设备发热而产生上升气流对层流的影响。

手术室层流送风天花-洁净送风天花工作原理:送风天花由高效空气消毒过滤系统、风机动力系统、消音降噪系统、操作控制系统等组成。工作时风机吸入环境空气,在经过空气净化消毒系统过滤成为洁净无菌空气,再以层流的方式将洁净空气送到罩内病床区域,同时使罩内保持正压,以阻止外部空间的尘埃粒子及微生物进入罩内。

]]>
http://www.52xiaomantou.cn/2802.html/feed 0
手术室送风天花阻尼网 http://www.52xiaomantou.cn/2787.html http://www.52xiaomantou.cn/2787.html#respond Wed, 18 Sep 2019 09:37:24 +0000 http://www.52xiaomantou.cn/?p=2787 手术室送风天花阻尼网|网孔板|均流网

手术室送风天花阻尼网又称为手术室送风天花网孔板、手术室送风天花均流网、均流膜,主要分为四个部分组成:铝合金框架包边、300目双层阻尼网、不锈钢骨架、卡簧(均流网非广州梓净产品,更换时需要测量卡簧中心距、铝合金外框需要测量边长的端点到斜角位置距离)。此产品不做过多介绍,直接上图。

手术室送风天花阻尼网

手术室送风天花网孔板

手术室送风天花均流网

手术室送风天花均流网卡簧

手术室送风天花制作要求选配:

1、A型箱体为冷轧钢板静电喷塑处理,冷轧钢板静电喷塑做围护及进风过滤框,含双层DPP均流网及中速气流补偿装置。

2、B型外箱体采用SUS304不锈钢制作。抗腐蚀、耐酸碱、视觉更美观、强度高,同时,保留双层DPP均流网及中速气流补偿装置。

3、手术室送风天花阻尼层均流可选用铝质网孔板、304不锈钢网孔板、冷轧钢板烤漆网孔板、双层DPP均流网。

手术室送风天花方案设计图

手术室送风天花特点:

1、送风形式:层流送风天花分高效过滤器满布(平铺)送风和高效过滤器侧布(侧铺)送风两种。

2、气流状态:送风天花下部气流均匀,气流满布率≧95%,达到行业检测的相关参数要求。

3、均流模式:多块网孔板组合,出风均匀,静电粉末喷涂,和墙顶面同色,表面效果好。

4、工厂制造,现场采用标准连接件拼接组装,安装方便、简单,设备安装质量有保障。

5、维护操作:国标规格过滤器,更换快捷、方便,易维护。

6、过滤器压差密封技术:保证洁净区内无泄漏。

7、过滤器满布技术:压差低,超长使用寿命。

8、稳定的产品质量,供货周期短。

8、高分子阻尼层送风网面:低阻力,风速均匀。

9、均流度满足最新规范要求:不均匀度小于15% 。

10、变级别手术室:扩大手术室使用范围,提高手术室使用率;同时运行中节约能源 。

11、灯柱盖板小于250mm×250mm——符合最新版规范要求。

烤漆手术室送风天花

更多相关产品介绍:手术室送风天花

手术室送风天花阻尼网可根据用户需求定制!

]]>
http://www.52xiaomantou.cn/2787.html/feed 0
手术室送风天花 http://www.52xiaomantou.cn/2749.html http://www.52xiaomantou.cn/2749.html#respond Sat, 31 Aug 2019 14:46:42 +0000 http://www.52xiaomantou.cn/?p=2749 手术室层流送风天花叫法及名称:

手术室层流送风天花又叫阻漏层流天花、层流送风天花、手术室洁净送风天花;层流送风天花是现代医院手术室必用的一种净化装置。洁净送风天花是手术室、层流病房的净化送风末端,它具有高效过滤,均流及气流补偿作用。

手术室层流送风天花

手术室层流送风天花作用、用途、概述:

1、手术室洁净层流送风天花装置是根据阻漏层技术,依托手术室洁净送风天花以及新型密封技术制造出来的洁净送风天花装置,使用本设备可合理分布洁净室内的气流,有效保证室内的洁净度,可广泛应用于医院洁净手术室、洁净病房、洁净动物房等项目。

2、洁净送风天花是手术室送风末端经验及实践的结晶,这种送风末端已得到了近千间手术室的运用验证。其优越的性能、独特的散流板能使气流均匀送到工作区域,而中央气流补偿装置能有效地消除人员、设备发热而产生上升气流对层流的影响。

手术室层流送风天花采用冷轧钢板烤漆制作

3、层流天花是洁净手术室、层流病房的净化送风末端,它兼有高效过滤,均流及气流补偿作用。层流天花结构的合理性直接影响到手术室的送风效果,净化级别.垂直送风模式,手术室专用不锈钢层流送风天花:层流送风天花参照国际国内规范和技术进行开发,经十多年实际医院使用经验积累,结构先进合理,分为I、II、III级手术室用,箱体冷板喷塑,下框全不锈钢,美观耐用。洁净送风天花装置是根据国内外领先的阻漏层技术,使用本设备可合理分布洁净室内的气流,有效保证室内的洁净度(送风面100级)。

4、箱体内壁四角及铝合金边框可以根据客户需要加工成小于R80mm圆弧过渡,杜绝死角,不易滋生细菌。箱体中可根据需要设置气密性净化灯带,即有层流效果,又可照明;与内嵌入环岛整体式净化灯带相配合,使整个手术室光照度均匀,解决了老款安装在大型手术室中,光照度不均匀的不利因素。

手术室层流送风天花规格型号

5、阻尼层均流,采用铝合金扣压式装配,不得使用螺钉装配,以便于更换及维护。中间带中速气流补偿装置采用2.0mm厚的拉丝防锈铝板制作,完全杜绝以前层流天花因为无影灯阻挠而中心位置气流减弱而影响层流效果;进口阻尼层流微孔均流送风。

手术室层流送风天花制作要求选配:

1、A型箱体为冷轧钢板静电喷塑处理,冷轧钢板静电喷塑做围护及进风过滤框,含双层DPP均流网及中速气流补偿装置。

2、B型外箱体采用冷板喷塑,内部SUS304不锈钢制作,中间夹保温板??垢?、耐酸碱、保温效果好,视觉更美观;强度高,同时,保留双层DPP均流网及中速气流补偿装置。

3、箱体采用全SUS304不锈钢制作。

手术室层流送风天花洁净等级参考标准

]]>
http://www.52xiaomantou.cn/2749.html/feed 0